L'art de l'espace habité.
Mohammed Saoud — Designer d'intérieur. Espaces sur mesure entre rigueur contemporaine et sensibilité artisanale.


— LE STUDIO
Composer chaque espace comme une œuvre singulière.
STUDIOMO conçoit des intérieurs élégants, raffinés et profondément habitables. Chaque projet est une rencontre entre la lumière, la matière et le rythme de ceux qui y vivent.
— SÉLECTION
Réalisations choisies

— PHILOSOPHIE
Le luxe, c'est le silence d'un espace juste.
Nous croyons en l'épure, en la noblesse des matériaux et en l'harmonie discrète. Chaque détail est dessiné, chaque proportion mesurée, chaque texture choisie pour durer.
— MATIÈRES & DÉTAILS
Une signature dans la matière.
Chaque projet débute par une étude tactile : bois, pierre, métal, textile. Les palettes sont composées comme une partition — cohérentes, chaleureuses, durables.



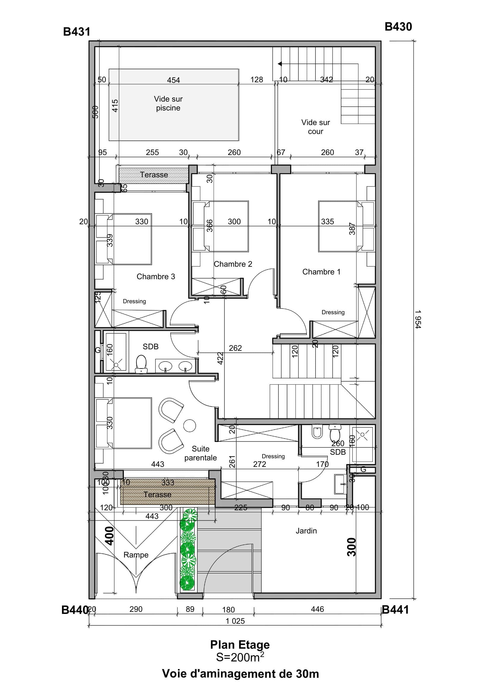
— CONCEPTION
De la mesure au dessin exécuté.
Grâce à ma formation en génie civil, chaque projet est précédé de plans techniques précis : circulation, proportions, contraintes structurelles. Le dessin au service de l'usage.
Plan étage — 200 m² · résidence privée

— SAVOIR-FAIRE
Sept disciplines, une signature.
Conception 2D / 3D
Plans techniques précis et rendus 3D photoréalistes pour visualiser chaque espace avant qu'il n'existe.
Plans d'aménagement
Étude fonctionnelle et circulation des flux. Chaque mètre carré pensé pour servir la vie qui s'y déroule.
Choix matériaux & couleurs
Sélection rigoureuse de matières, finitions et palettes. La cohérence d'une signature visuelle complète.
Design salon / cuisine / chambre
Conception des pièces de vie principales avec une attention particulière à l'équilibre et à l'usage quotidien.
— PAROLES
Ce qu'ils en disent.
« Mohammed a transformé notre appartement en un lieu apaisant et lumineux. Chaque détail a été pensé avec une rare élégance. »
« Un sens du dessin remarquable et une écoute juste. Le résultat dépasse nos attentes — un véritable cocon. »
« Calme, précis, créatif. STUDIOMO conçoit avec sobriété et livre avec exigence. Je recommande sans réserve. »






